PROCESS IN PHASES
Project: The Youth Collective
-

01 / Project Proposal
Each project begins with thorough research to define the aim and understand the broader social, environmental, and user context. I conduct precedent analysis to explore what currently exists and identify design gaps or opportunities. From there, I introduce the brief, outlining interior requirements and establishing what the project is, who it is for, and why it matters. This foundation leads to a detailed site plan and analysis, examining orientation, access, climate, and the surrounding fabric. Through early diagramming and concept sketching, I translate research into spatial ideas that guide the design development.
-

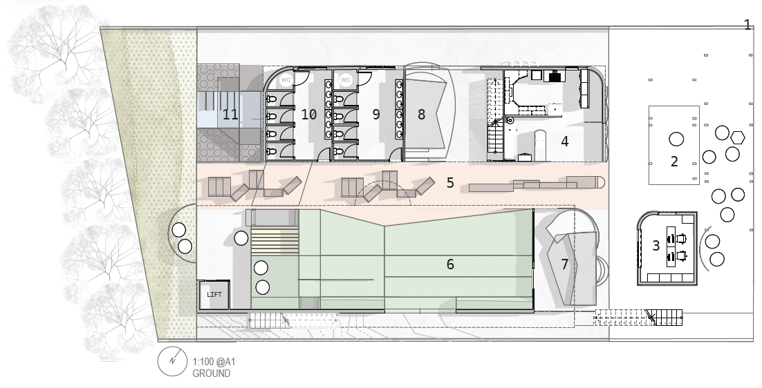
02 / Preliminary Design
To begin a preliminary design project, I establish a structured and professional layout that presents key visual elements, such as perspective elevations, a site plan, and physical or digital models. I continue exploring precedent images to deepen my understanding of how similar design challenges have been approached. From there, I develop floor plans, sections, elevations, and early details supported by rendered images to communicate spatial intent. At this stage, I critically ask: “How does my design respond to the site?”- framing my site analysis through that lens and leading to the production of 3d diagrams that illustrate the evolution of spatial planning, detail resolution, and materiality exploration throughout the design process.
-

03 / Final Design
At the final stage, I present a fully resolved design to the client through a comprehensive set of construction documentation that includes detailed Fixtures, Finishes, and Equipment (FFE) schedules, high-quality 3d visualisations, material boards, and a full suite of construction drawings. These documents clearly define the project's scope, intent, and technical resolution. Every design element is refined and documented to a high level of detail, ensuring the project is ready for real-world implementation and construction.